浙江聚英環保科技有限公司為您主要提供一體式濾筒除塵器,廚房油煙凈化裝置,焊接除塵設備,焊接煙塵凈化設備等相關的展示和信息更新,歡迎您的收藏。

涂料在我國有漫長的發展史,隨著我國涂料行業發展的愈發壯大,污染也隨之擴大產生。目前涂料行業涉及的污染包括:廢水、廢氣、粉塵、固體廢棄物、氨氮等。涂料廢氣主要源于生產過程中使用的有機溶劑及稀釋劑,涂膜形成后,有機揮發物進入大氣,涂料中的廢氣有害物質會導致空氣質量下降,損害人體健康。

本期給大家分享廣東某復合材料有限公司車間廢氣收集治理項目,一起了解聚英環保對于車間廢氣收集治理項目細節把控。
【項目信息】:
廣東某復合材料有限公司主要生產增材制造及激光制造設備的制造;增材制造及激光制造設備的銷售;航空、航天相關設備制造等。企業在涂漆過程、樹脂施工過程產生的有機廢氣通過有組織收集,經過環保設備凈化處置后達標排放達標。
【廢氣處理工藝】:
廢氣經過管道收集后進入緩沖管內做勻風處理,勻風后風廢氣在負壓引風機的作用下進入經過干式過濾箱內部初效及高效過濾后,進入處理系統:活性炭吸附脫附催化燃燒凈化設備。
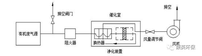
工藝流程圖:
管路收集 → 干式過濾 → 活性炭吸附脫附催化燃燒設備→達標排放
【設備原理】:
由環保離心風機將大風量、低濃度有機廢氣吸入活性炭吸附床,在吸附床內與多層蜂窩狀活性炭充分凈化(吸附),活性炭內部逐漸富集濃縮大量有機廢物,而潔凈的氣體則排入大氣;通過燃燒裝置產生的高溫氣體經換熱之后通入活性炭吸附床,使內部有機廢物90℃高溫氣化從活性炭孔隙中逸散而出,此時的廢氣濃度遠遠高于初始吸附的廢氣濃度,然后進入催化燃燒裝置(350℃)進行氧化分解成CO2 和H2O等無害氣體,氣體經由熱交換器將熱量傳遞再次用于脫附,然后排入大氣,以此完成一整套凈化流程。
本項目收集效率>93,凈化效率>95.燃燒形成的二氧化碳和水通過末端引風機的負壓作用下,離地 15 米高空達標排放。
現場照片

一體式濾筒除塵器怎么樣?廚房油煙凈化裝置哪家便宜?焊接除塵設備哪家好?浙江聚英環保科技有限公司主要提供一體式濾筒除塵器,廚房油煙凈化裝置,焊接除塵設備,焊接煙塵凈化設備
Copyright©www.e7749.cn ( 點擊復制 )浙江聚英環保科技有限公司 備案號:浙ICP備15038850號-1 浙公網安備:33060402000164